°ÅÁ¦ ½ºÆ÷Ã÷ÆÄÅ© Á¶¼º»ç¾÷ º»°Ý ÃßÁø
¿À´Â 23ÀÏ, °ÅÁ¦¸é¿¡¼ ½Ã¹ÎÂü¿© ±â°ø½Ä °³ÃÖ
ÀÛ¼º : 2005³â 03¿ù 15ÀÏ(È) 12:55 °¡+°¡-

¼ö·ÁÇÑ ÀÚ¿¬°æ°ü°ú ¿ÂÈÇÑ ±âÈÄ·Î ¿¬Áß °ü±¤°´ÀÇ ¹ß±æÀÌ ²÷ÀÌÁö ¾Ê´Â ³²ÇؾÈÀÇ ÇØ¾ç°ü±¤È޾絵½Ã·Î °¢±¤ ¹Þ°í ÀÖ´Â °ÅÁ¦½Ã°¡ ¡®À£ºùµµ½Ã¡¯ °Ç¼³À» À§ÇÑ ½ºÆ÷Ã÷ÆÄÅ© Á¶¼º°ø»ç¿¡ ¹ÚÂ÷¸¦ ±âÇϰí ÀÖ´Ù.
15ÀÏ °ÅÁ¦½Ã´Â ¡°2008³â ÃʱîÁö 140¿©¾ï¿øÀÇ »ç¾÷ºñ·Î 3¸¸¿©ÆòÀÇ ºÎÁö¿¡ °ÅÁ¦½Ã½ºÆ÷Ã÷ÆÄÅ© Á¶¼º°ø»ç¸¦ ½ÃÇàÇÑ´Ù¡± °í ¹àÈ÷°í, ¿À´Â 23ÀÏ °ÅÁ¦¸é ¼Á¤¸® 808-9¹øÁö °ø»çÇöÀå¿¡¼ ½Ã¹ÎµéÀÌ Âü¿©ÇÑ °¡¿îµ¥ ±â°ø½ÄÀ» °³ÃÖÇÒ ¿¹Á¤ÀÌ´Ù.
½Ã´Â ´ë¿ì, »ï¼ºÀÇ ¾ç´ë Á¶¼±°ø´Ü ±Ù·ÎÀÚ µî 20¸¸ ½Ã¹ÎÀÇ ¡®À£ºù¡¯¿¡ °É¸Â´Â »ýȰüÀ°½Ã¼³ÀÌ ½Ã±ÞÇÏ´Ù´Â ¿©·Ð¿¡ µû¶ó, Áö³ 2003³â ±¹µµºñº¸Á¶±ÝÀ» Æ÷ÇÔÇÑ 30¾ï¿øÀÇ »ç¾÷ºñ¸¦ 1Â÷·Î È®º¸ÇÏ¿© ±âº»°èȹ¼ö¸³°ú ºÎÁö¸ÅÀÔÀ» ½Ç½ÃÇϰí Áö³ÇØ 11¿ù ½Ç½Ã¼³°è¸¦ ¸¶Ä§À¸·Î¼ º»°ÝÀûÀÎ »ç¾÷ Âø¼ö¸¦ ÇÒ ¼ö ÀÖ´Â ±âƲÀ» ¸¶·Ã, ¿Ã 1¿ù ¾ÈÁ¤°³¹ß(ÁÖ)¿Í Á¦1´Ü°è °è¾àÀ» ü°áÇÏ°í º» °ø»ç¿¡ µé¾î°¡°Ô µÆ´Ù.
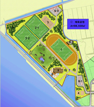
1¸¸ 5õÆò ºÎÁö¿¡ õ¿¬Àܵ𸦠°®Ãá Á¾ÇտÀå 1¸é, ÀÎÁ¶Àܵð Ã౸Àå 2¸é, Å״ϽºÀå 4¸é, °ÔÀÌÆ®º¼Àå 2¸é, ¹è±¸ ³ó±¸¸¦ ÇÒ ¼ö Àִ üÀ°½Ã¼³°ú ³ìÁö°ø¿øÀ» Á¶¼ºÇÒ °èȹÀÌ´Ù.
¶ÇÇÑ ÁøÀÔ·Î ÀÔ±¸¿¡ ¾à 400Æò ±Ô¸ðÀÇ ¼÷½ÄÀ» °âÇÒ ¼ö ÀÖ´Â ÆíÀǽü³À» ¼³Ä¡, ÀÌ °÷À» ã´Â »ç¶÷µé¿¡°Ô °ü±¤ °ÅÁ¦ÀÇ À̹ÌÁö¸¦ ÇÑÃþ ´õ ³ô¿© ³ª°¥ °èȹÀÌ´Ù.
½Åµ¿¼· ¹®È°øº¸´ã´ç°üÀº ¡°¾î·Á¿î ½Ã ÀçÁ¤À» °¨¾È, ½Ç½Ã¼³°è»ó ÇöÀå ³ôÀ̺¸´Ù Æò±Õ 3.4¹ÌÅÍ ³ôÀÌ¿¡ ÇÊ¿äÇÑ ¼ºÅä¼Ò¿ä·® 33¸¸§©ÀÇ ¿î¹Ýºñ¿ë 26¾ï¿øÀ» ½Ã °ü³» ¹Î,°ü ´ëÇü°ø»çÀå¿¡¼ È®º¸, ¿¹»êÀ» Àý°¨Çϰí ÀÖÀ¸¸ç, °ø»çÇöÀåÀÇ »çÅäÀå»ç¿ë·á 1¾ï¿øÀ» ¼¼ÀÔó¸® ÇÒ °èȹÀ¸·Î ÀÌ¹Ì 1Â÷ºÐ 5õ¸¸¿øÀÌ ½Ã ±Ý°í¿¡ ÀÔ±Ý, Á÷.°£Á¢ÀûÀ¸·Î 27¾ï¿øÀÇ ¿¹»êÀý°¨ È¿°ú¸¦ °ÅµÎ°í ÀÖ´Ù¡± °í ¹àÇô °ÅÁ¦½Ã °ø¹«¿øµéÀÇ ³ë·Âµµ µ¸º¸À̰í ÀÖ´Ù.
ÀÌ »ç¾÷ÀÌ ¿Ï·áµÇ¸é ¡®À£ºù¡¯ ½Ã´ë¿¡ ºÎÀÀÇÏ´Â ¸í½Ç»óºÎÇÑ °ÅÁ¦½Ã »ýȰüÀ°°ø¿øÀ¸·Î¼ÀÇ ¿ªÇÒÀº ¹°·Ð °Ü¿ïö ÀüÁö ÈÆ·ÃÀåÀ¸·Îµµ Àü±¹¿¡¼ °¢±¤ ¹ÞÀ» °ÍÀÌ È®½Ç½Ã µÅ °ü±¤¼öÀÔ¿¡µµ ÇÑ ¸ò ÇÒ °ÍÀ¸·Î ±â´ëµÈ´Ù.
¸ð´×´º½º ±âÀÚ webmaster@morningnews.or.kr ±â»ç ´õº¸±â
15ÀÏ °ÅÁ¦½Ã´Â ¡°2008³â ÃʱîÁö 140¿©¾ï¿øÀÇ »ç¾÷ºñ·Î 3¸¸¿©ÆòÀÇ ºÎÁö¿¡ °ÅÁ¦½Ã½ºÆ÷Ã÷ÆÄÅ© Á¶¼º°ø»ç¸¦ ½ÃÇàÇÑ´Ù¡± °í ¹àÈ÷°í, ¿À´Â 23ÀÏ °ÅÁ¦¸é ¼Á¤¸® 808-9¹øÁö °ø»çÇöÀå¿¡¼ ½Ã¹ÎµéÀÌ Âü¿©ÇÑ °¡¿îµ¥ ±â°ø½ÄÀ» °³ÃÖÇÒ ¿¹Á¤ÀÌ´Ù.
½Ã´Â ´ë¿ì, »ï¼ºÀÇ ¾ç´ë Á¶¼±°ø´Ü ±Ù·ÎÀÚ µî 20¸¸ ½Ã¹ÎÀÇ ¡®À£ºù¡¯¿¡ °É¸Â´Â »ýȰüÀ°½Ã¼³ÀÌ ½Ã±ÞÇÏ´Ù´Â ¿©·Ð¿¡ µû¶ó, Áö³ 2003³â ±¹µµºñº¸Á¶±ÝÀ» Æ÷ÇÔÇÑ 30¾ï¿øÀÇ »ç¾÷ºñ¸¦ 1Â÷·Î È®º¸ÇÏ¿© ±âº»°èȹ¼ö¸³°ú ºÎÁö¸ÅÀÔÀ» ½Ç½ÃÇϰí Áö³ÇØ 11¿ù ½Ç½Ã¼³°è¸¦ ¸¶Ä§À¸·Î¼ º»°ÝÀûÀÎ »ç¾÷ Âø¼ö¸¦ ÇÒ ¼ö ÀÖ´Â ±âƲÀ» ¸¶·Ã, ¿Ã 1¿ù ¾ÈÁ¤°³¹ß(ÁÖ)¿Í Á¦1´Ü°è °è¾àÀ» ü°áÇÏ°í º» °ø»ç¿¡ µé¾î°¡°Ô µÆ´Ù.
1¸¸ 5õÆò ºÎÁö¿¡ õ¿¬Àܵ𸦠°®Ãá Á¾ÇտÀå 1¸é, ÀÎÁ¶Àܵð Ã౸Àå 2¸é, Å״ϽºÀå 4¸é, °ÔÀÌÆ®º¼Àå 2¸é, ¹è±¸ ³ó±¸¸¦ ÇÒ ¼ö Àִ üÀ°½Ã¼³°ú ³ìÁö°ø¿øÀ» Á¶¼ºÇÒ °èȹÀÌ´Ù.
¶ÇÇÑ ÁøÀÔ·Î ÀÔ±¸¿¡ ¾à 400Æò ±Ô¸ðÀÇ ¼÷½ÄÀ» °âÇÒ ¼ö ÀÖ´Â ÆíÀǽü³À» ¼³Ä¡, ÀÌ °÷À» ã´Â »ç¶÷µé¿¡°Ô °ü±¤ °ÅÁ¦ÀÇ À̹ÌÁö¸¦ ÇÑÃþ ´õ ³ô¿© ³ª°¥ °èȹÀÌ´Ù.
½Åµ¿¼· ¹®È°øº¸´ã´ç°üÀº ¡°¾î·Á¿î ½Ã ÀçÁ¤À» °¨¾È, ½Ç½Ã¼³°è»ó ÇöÀå ³ôÀ̺¸´Ù Æò±Õ 3.4¹ÌÅÍ ³ôÀÌ¿¡ ÇÊ¿äÇÑ ¼ºÅä¼Ò¿ä·® 33¸¸§©ÀÇ ¿î¹Ýºñ¿ë 26¾ï¿øÀ» ½Ã °ü³» ¹Î,°ü ´ëÇü°ø»çÀå¿¡¼ È®º¸, ¿¹»êÀ» Àý°¨Çϰí ÀÖÀ¸¸ç, °ø»çÇöÀåÀÇ »çÅäÀå»ç¿ë·á 1¾ï¿øÀ» ¼¼ÀÔó¸® ÇÒ °èȹÀ¸·Î ÀÌ¹Ì 1Â÷ºÐ 5õ¸¸¿øÀÌ ½Ã ±Ý°í¿¡ ÀÔ±Ý, Á÷.°£Á¢ÀûÀ¸·Î 27¾ï¿øÀÇ ¿¹»êÀý°¨ È¿°ú¸¦ °ÅµÎ°í ÀÖ´Ù¡± °í ¹àÇô °ÅÁ¦½Ã °ø¹«¿øµéÀÇ ³ë·Âµµ µ¸º¸À̰í ÀÖ´Ù.
ÀÌ »ç¾÷ÀÌ ¿Ï·áµÇ¸é ¡®À£ºù¡¯ ½Ã´ë¿¡ ºÎÀÀÇÏ´Â ¸í½Ç»óºÎÇÑ °ÅÁ¦½Ã »ýȰüÀ°°ø¿øÀ¸·Î¼ÀÇ ¿ªÇÒÀº ¹°·Ð °Ü¿ïö ÀüÁö ÈÆ·ÃÀåÀ¸·Îµµ Àü±¹¿¡¼ °¢±¤ ¹ÞÀ» °ÍÀÌ È®½Ç½Ã µÅ °ü±¤¼öÀÔ¿¡µµ ÇÑ ¸ò ÇÒ °ÍÀ¸·Î ±â´ëµÈ´Ù.




